持续发力!道外连推两宗商住用地 未来两盘入市
扫描到手机,新闻随时看
扫一扫,用手机看文章
更加方便分享给朋友
昨天,小编为大家介绍了道外区一住宅项目部分进行批前公示道外住宅有新增?又一批住宅房源进行批前公示 ,为区域可选楼盘增添选项。无独有偶,昨天道外区连推两宗二类商住用地,总起拍价达97790万元,5月24日这2宗地块将被公开拍卖。

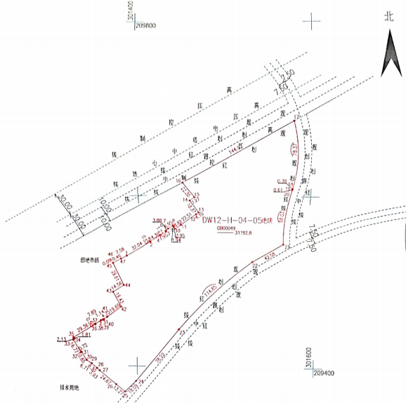
NO.2021HT008地块:
地块位置:道外区水源路
占地面积:31192.8平方米
建筑面积:不大于158600平方米(其中地上面积不大于108600平方米,地下面积50000平方米)
宗地性质:二类居住用地兼容商业设施用地
出让年限:住宅70年、商服40年
容积率:不大于3.48
出让起始价:37674万元
起始楼面价:约为3469.06元/㎡


NO.2021HT008地块位于道外区新一地区,北侧临近松花江边,南侧即为去年以来政府大力发展的哈东地区,包括哈东站商圈。而此次所出让地块周边多为厂房或待开垦土地,发展潜力被社会各界所看好,周边在售新盘有中海·观澜庭、汇龙·花溪半岛、汇龙·玖和琚三大名企项目,普通住宅参考均价约在10000-12000元/㎡之间。
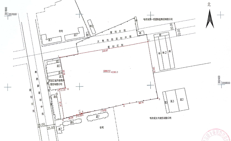
NO.2021HT009地块:
地块位置:道外区大有坊街
占地面积:42283.3平方米
建筑面积:不大于145868平方米(其中地上面积不大于105708平方米,地下面积40160平方米)
宗地性质:二类居住用地兼容商业设施用地
出让年限:住宅70年、商服40年
容积率:不大于2.5
出让起始价:60116万元
起始楼面价:约为5686.99元/㎡


NO.2021HT009地块位于大有坊街与南直路交汇处东南方向,生活配套成熟齐全,周边主干道南直路、先锋路、化工路交错纵横,出行条件便利,教育方面有南直中学校、虹桥中学、淮河小学校等资源;医疗方面有省农垦二分院、市第二医院、排名前列专科医院、省司法医院等。距离此次出让地块较近的楼盘有福汇东方·叁号院、碧桂园·国风云著,目前暂未开盘没有公布住宅参考价格。
此次出让的两宗哈东地块,一个处在逐步开发已有知名房企进驻的区域,一个处于配套醇熟生活氛围浓厚的区域,相信未来将为道外区乃至哈尔滨市的房产市场增色不少,究竟花落谁家?入市后房价如何?我们一起期待。
声明:本文由入驻焦点开放平台的作者撰写,除焦点官方账号外,观点仅代表作者本人,不代表焦点立场。
